MODEL HOUSE
[旭川市]
㈱石山工務店 villaモデル

全館空調+太陽光と蓄電池で自給自足の暮らしを実現したモデルハウスです。「ホテルライク×ヴィラスタイル」をコンセプトに、静けさと開放感を感じる快適で上質な住まいをデザインしました。
- 省エネ・快適
ポイント -
- GX志向型住宅
- 太陽光発電
- 蓄電池
- 全館空調システム
スマート電化機器
- エコキュート

- 全館空調
システム
- IHクッキング
ヒーター
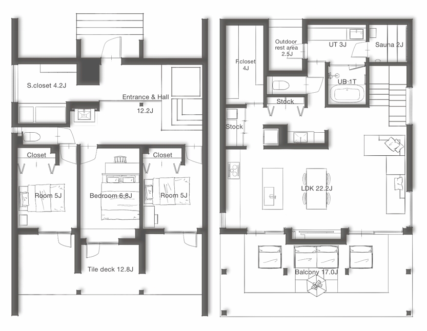
平面図
- ■延床面積/
- 162.66㎡
建設会社の声
- ■会社名/
- 株式会社 石山工務店
- ■住 所/
- 旭川市東4条8丁目1番15号
- ■連絡先/
- 0166-22-1480
旭川で創業して68年。沢山の皆様にご愛顧頂き、遂に旭川エリア新築注文住宅棟数17年連続NO.1に輝きました。旭川で生まれ育った私達だからこそわかる、旭川の厳しい気候や環境に耐えうるしっかりとしたお家づくりをご提案します。
㈱石山工務店 villaモデル
旭川市神楽岡8条4丁目3-3
- 営業時間/
- 9:00~19:00
- お問い合わせ先/
- 0166-22-1480





